Il semble que ce service ait été suspendu

Je dessinerai les plans de votre food truck, remorque ou conteneur

A
anastrusalina29
A
anastrusalina29
Anastasiia
Certaines informations ont été traduites automatiquement.

À propos de ce service

Traduction automatique

Vous souhaitez ouvrir un food truck et vous ne savez pas comment placer tous les appareils et meubles pour une utilisation pratique ?


Je peux vous aider :) J'ai mis en œuvre environ 80 projets - de la conception à l'utilisation pratique du food truck par mes clients.


Que puis-je faire?


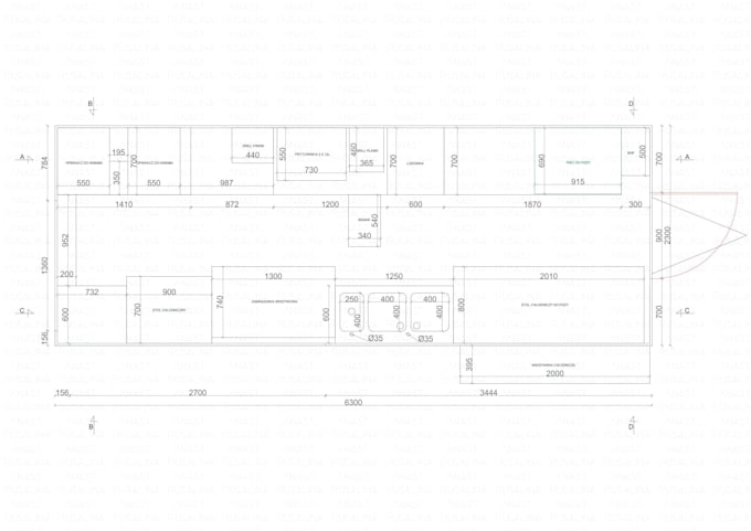
Disposition des appareils et du mobilier - vue de dessus

Disposition des appareils et du mobilier et dessins détaillés de chaque mur

Plan d'installation électrique - emplacement pratique des prises, emplacement de la boîte à fusibles, emplacement de la sortie d'égout et du raccordement à l'eau.

Plan d'éclairage - emplacement des lumières et des interrupteurs


À l'aide de dessins, vous pouvez facilement passer par l'étape de réparation et d'ouverture d'une entreprise.

Préférence du type de livraison

Veuillez informer le freelance de toute préférence ou préoccupation concernant l'utilisation d'outils d'IA dans la réalisation et/ou la livraison de votre commande.

Découvrez Anastasiia

Anastasiia

A little about me:

  • DePologne
  • Membre depuisfévr. 2022
  • Dernière commande2 années
  • Langues

    Russe, Polonais, Anglais
Hello, My name is Anastasiia. I have been designing gastronomic spaces for 6 years. My career started with food trucks, trailers, and container kitchens, with around 80 completed projects. For the past two years, I have specialized in commercial kitchen facilities for restaurants and hotels in Poland, focusing on efficient layouts and technical integration. My goal is to create functional, high-performance spaces that enhance business operations. Need a professional kitchen or restaurant design? Let’s bring your vision to life.

Traduction automatique